
概述:
79992cm德彩网GDF系列的离心式管道风机,这个风机的叶轮选用了前倾斜形式的多翼离心叶轮,单侧的吸风。风机设计的是水平进出,方形的进出风口可以直接连接到风管上。本机采用的风机电机为空调专用电机,噪声小,运行稳定,使用寿命长。
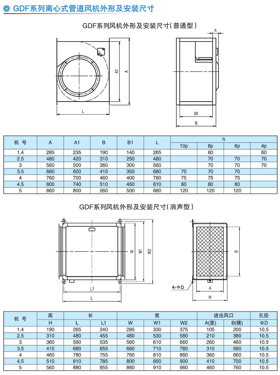
79992cm德彩网风机按直径分为140~500mm十六种规格系列风量为130~7280m³/h,全压为45~810Pa。
79992cm德彩网为适应不同场所噪声的要求,分为:
普通型:其全部材料为镀锌钢板通过咬口成形;
79992cm德彩网消声型:其风机部分为镀锌钢板通过咬口成形。
箱体箱板采用彩色涂板,内部加了消声的材料,框架采用的是铝合金型材,进出风口设置过滤网。
GDF系列离心式管道风机工作条件:
79992cm德彩网工作温度:-20~+40℃;
湿度:小于90%;
介质条件:空气(含尘量不超过100mg/m³);
工作电源:三相380V/50Hz(部分型号)
单相220V/50Hz(部分型号)。
GDF系列离心式管道风机应用:
风机广泛应用于宾馆、饭店、会议室、办公楼、公共场所、商场等通风换气之用。
GDF系列离心式管道风机配置:
标准配置
●叶轮; ●外转子电机; ●机壳(蜗壳 集流器、电机支架);
●过滤网(仅消声型); ●箱体(仅消声型)。
备选件及附件(订货时说明是否购买)
※减振设备; ※控制箱; ※消声器; ※对接法兰。
GDF系列离心式管道风机加工工艺:
风机叶轮以及机壳都是选用的高品质的镀锌钢板材质,选用全模具生产加工通过咬口来成形。叶轮的通过静、动平衡校精度不超过 G5.6级。
消声型风机箱板经过了数控折弯机进行折成边之后形成的,采用自攻螺钉还用铝合金的型材链接构成的。

